4 rok, 104 m²
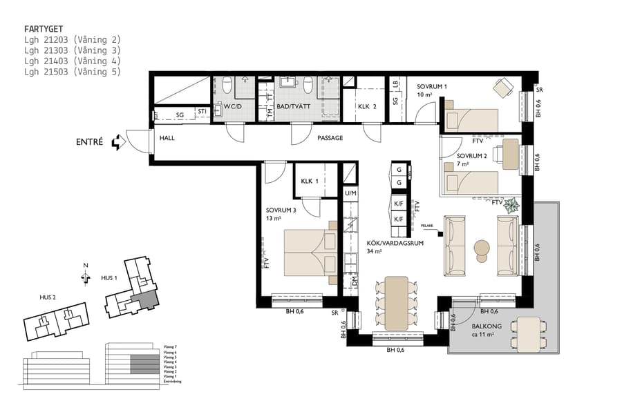
Här bor du i en fyrarummare på 103 kvm i ett attraktivt hörnläge som ger bostaden både rymd och fint ljusinsläpp. Planlösningen är öppen mellan kök och vardagsrum och skapar en generös yta där middagar, vardagsliv och umgänge får ta plats. Från vardagsrummet kliver du ut på den balkong i vinkel som ramar in hemmet och ger en trivsam utemiljö med plats för både matbord och sittgrupp.
Tre sovrum gör bostaden flexibel och ger gott om utrymme för familj, gäster eller hemmakontor. Vardagen underlättas av två badrum, där det större är utrustat med tvättmaskin, torktumlare medan det andra fungerar som en smidig gäst wc med dusch. Förvaringen är välplanerad med garderober och en klädkammare som gör det enkelt att hålla ordning i hemmet.
Fartyget är ett nyproduktionsprojekt med 89 bostäder där standarden är genomgående hög. Alla lägenheter har kök från Vedum, vitvaror från Electrolux och moderna materialval som håller över tid. Som boende får du även tillgång till garage med laddplatser, cykelhus samt både bil och cykelpool.
Dockan är en levande stadsdel som erbjuder en unik kombination av kajliv och citypuls. Här finns restauranger, service och promenadstråk längs vattnet alldeles nära hemmet.
Tre sovrum gör bostaden flexibel och ger gott om utrymme för familj, gäster eller hemmakontor. Vardagen underlättas av två badrum, där det större är utrustat med tvättmaskin, torktumlare medan det andra fungerar som en smidig gäst wc med dusch. Förvaringen är välplanerad med garderober och en klädkammare som gör det enkelt att hålla ordning i hemmet.
Fartyget är ett nyproduktionsprojekt med 89 bostäder där standarden är genomgående hög. Alla lägenheter har kök från Vedum, vitvaror från Electrolux och moderna materialval som håller över tid. Som boende får du även tillgång till garage med laddplatser, cykelhus samt både bil och cykelpool.
Dockan är en levande stadsdel som erbjuder en unik kombination av kajliv och citypuls. Här finns restauranger, service och promenadstråk längs vattnet alldeles nära hemmet.
















