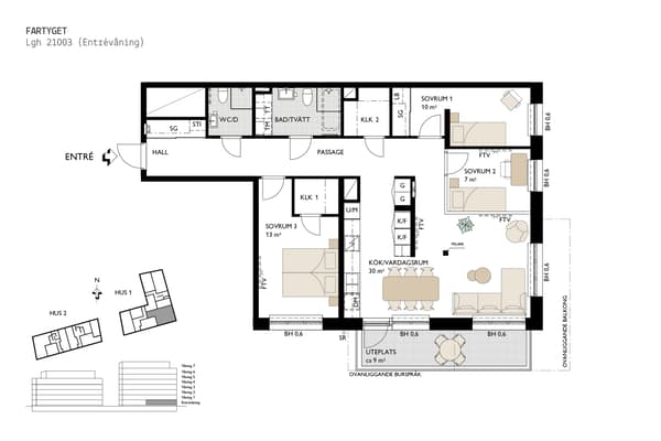
4 rok, 104 m²
Denna fyra på 103 kvm på våning fem är ett hem med gott om plats för hela familjen. Planlösningen är väl genomtänkt med vardagsrum och kök i öppen anslutning, vilket skapar en generös yta för middagar, sociala stunder och vardagsliv. Härifrån når du balkongen som blir en naturlig förlängning av bostaden. De tre sovrummen gör hemmet flexibelt och ger utrymme för barnrum, gästrum eller hemmakontor.
Två badrum gör vardagen både smidig och bekväm. Det större badrummet är utrustat med både tvättmaskin och torktumlare, medan det mindre fungerar som en praktisk gäst-wc med dusch. Gott om förvaring i garderober och klädkammare gör att bostaden är enkel att hålla i ordning. Här får du ett hem som passar lika bra för vardagligt familjeliv som för festliga tillställningar.
Som en del av Fartyget får du hög standard med Vedumkök, vitvaror från Electrolux och moderna materialval som håller över tid. Föreningen erbjuder garage med laddplatser, cykelhus samt bil- och cykelpool som gör vardagen enklare. Dockan är en levande stadsdel fylld av restauranger, caféer och mötesplatser längs vattnet. Här bor du i ett område som sjuder av liv samtidigt som city finns bara några minuter bort.
Två badrum gör vardagen både smidig och bekväm. Det större badrummet är utrustat med både tvättmaskin och torktumlare, medan det mindre fungerar som en praktisk gäst-wc med dusch. Gott om förvaring i garderober och klädkammare gör att bostaden är enkel att hålla i ordning. Här får du ett hem som passar lika bra för vardagligt familjeliv som för festliga tillställningar.
Som en del av Fartyget får du hög standard med Vedumkök, vitvaror från Electrolux och moderna materialval som håller över tid. Föreningen erbjuder garage med laddplatser, cykelhus samt bil- och cykelpool som gör vardagen enklare. Dockan är en levande stadsdel fylld av restauranger, caféer och mötesplatser längs vattnet. Här bor du i ett område som sjuder av liv samtidigt som city finns bara några minuter bort.

















