4 rok, 94 m²
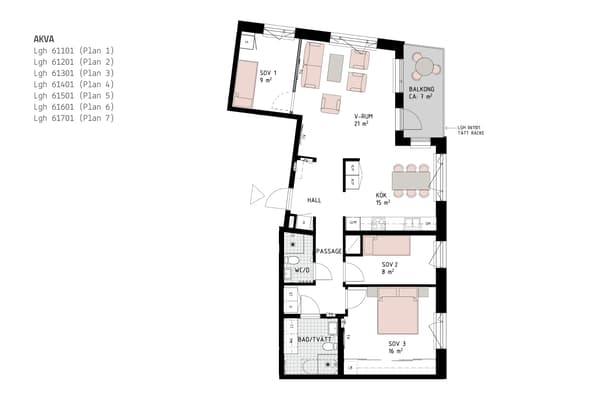
Välkommen till ett hem där ljuset flödar och de sociala ytorna står i fokus. Denna välplanerade hörnlägenhet i fritt läge erbjuder fönster i två väderstreck, en planlösning som bjuder in till både umgänge och avkoppling samt en balkong med utsikt mot grönska.
Det öppna sambandet mellan kök och vardagsrum skapar en naturlig samlingsplats som är perfekt för middagar, mingel och vardagsliv. Här finns plats för både matgrupp och soffhörna, med direkt access till balkongen som fångar morgon- och förmiddagsljuset – en idealisk plats för kaffe i solen.
Tre sovrum är strategiskt placerade för att skapa både funktionalitet och ro, där det ena med fördel kan användas som hemmakontor eller gästrum. Planlösningen är genomtänkt med en rymlig hall, gott om förvaring, gäst-wc och ett stort badrum med tvättmöjligheter.
Lägenheten präglas av en ljus, modern inredning med mattlackad ekparkett, stilrena materialval och tidlös färgsättning. Köket går i vitt med grå bänkskiva med bakkantslist, handtagslösa överskåp och rostfria vitvaror – inklusive integrerad diskmaskin. Dom genomtänkta materialen fortsätter även till belysningen där en LED-list under väggskåpen ger både arbetsljus och fin stämning. Från grundutförandet finns det möjlighet att göra inredningsval bland ett brett utbud.
Badrummet erbjuder tvättmaskin, torktumlare, arbetsbänk och skåp, samt dusch med glasväggar – allt i ett stilrent och funktionellt utförande. Här finns även möjlighet att, likt köket, göra personliga materialval för att sätta din egen prägel.
Kvarteret omsluter en lummig innergård med planteringar, pergola och lekyta. I huset finns garage med en tillhöras plats till bostaden, förråd, cykelrum och cykelverkstad. Läget mitt i centrala Nacka ger dig närhet till allt – Nacka Forum, naturen i Nyckelviken, vattnet vid Nacka Strand och utmärkta kommunikationer med buss, pendelbåt och den kommande tunnelbanan.
Det öppna sambandet mellan kök och vardagsrum skapar en naturlig samlingsplats som är perfekt för middagar, mingel och vardagsliv. Här finns plats för både matgrupp och soffhörna, med direkt access till balkongen som fångar morgon- och förmiddagsljuset – en idealisk plats för kaffe i solen.
Tre sovrum är strategiskt placerade för att skapa både funktionalitet och ro, där det ena med fördel kan användas som hemmakontor eller gästrum. Planlösningen är genomtänkt med en rymlig hall, gott om förvaring, gäst-wc och ett stort badrum med tvättmöjligheter.
Lägenheten präglas av en ljus, modern inredning med mattlackad ekparkett, stilrena materialval och tidlös färgsättning. Köket går i vitt med grå bänkskiva med bakkantslist, handtagslösa överskåp och rostfria vitvaror – inklusive integrerad diskmaskin. Dom genomtänkta materialen fortsätter även till belysningen där en LED-list under väggskåpen ger både arbetsljus och fin stämning. Från grundutförandet finns det möjlighet att göra inredningsval bland ett brett utbud.
Badrummet erbjuder tvättmaskin, torktumlare, arbetsbänk och skåp, samt dusch med glasväggar – allt i ett stilrent och funktionellt utförande. Här finns även möjlighet att, likt köket, göra personliga materialval för att sätta din egen prägel.
Kvarteret omsluter en lummig innergård med planteringar, pergola och lekyta. I huset finns garage med en tillhöras plats till bostaden, förråd, cykelrum och cykelverkstad. Läget mitt i centrala Nacka ger dig närhet till allt – Nacka Forum, naturen i Nyckelviken, vattnet vid Nacka Strand och utmärkta kommunikationer med buss, pendelbåt och den kommande tunnelbanan.
















