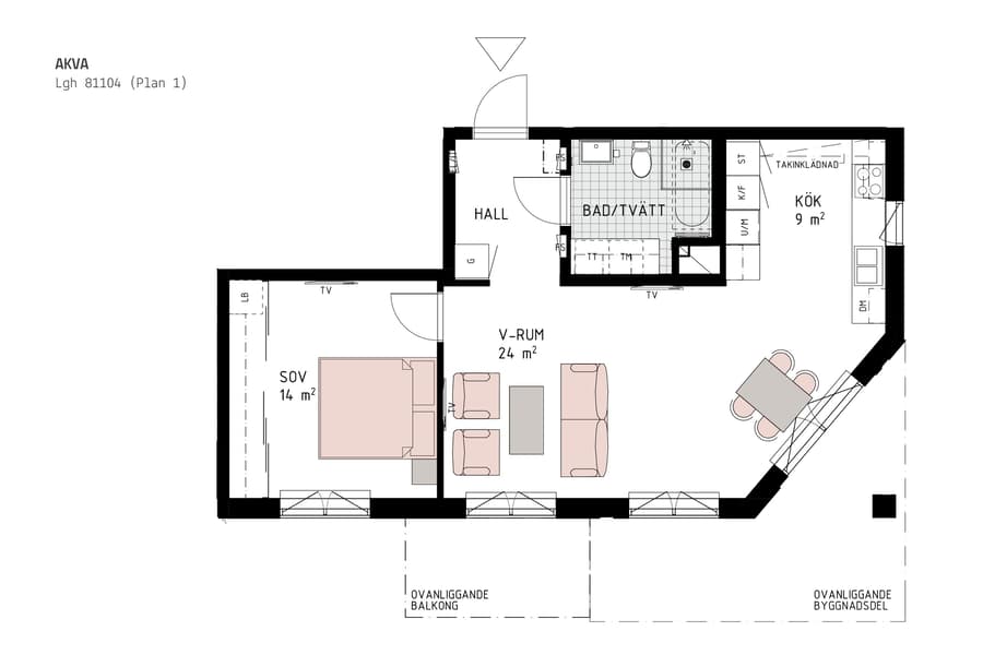
2 rok, 60 m²
Välkommen till denna välplanerade och perfekt planerade två rum och kök om 60 kvadrat. Här presenteras en ägarlägenhet med öppen planlösning där vardagsrummet skapar en inbjudande atmosfär och ger plats för både umgänge och avkoppling som i sin tur möter köket som är både praktiskt och socialt. En välkomnande hall med garderober och avhängningsmöjligheter samt badrum i anslutning med bekvämligheter såsom duschhörna av glas och maskiner med arbetsbänk och förvaringsskåp ovanför. Den optimala planlösningen följer in i det rymliga sovrummet med plats för bredare säng och garderobsvägg med skjutdörrar.
Lägenheten har en ljus och sober färgsättning med mattlackad ekparkett. Köket har i originalutförandet släta vita luckor och en grå bänkskiva som fortsätter upp på väggen som en bakkantslist. För en stilren känsla är köksskåpen ovan bänk handtagslösa och lådor med rostfria handtag samt en LED-list under väggskåpen som ger ett energieffektivt arbetsljus. De rostfria vitvarorna och den integrerade diskmaskinen skapar ett enhetligt intryck tillsammans medan de vitmålade väggarna.
Badrummet är rymligt och utrustat med tvättmaskin och torktumlare samt en arbetsbänk och förvaringsskåp. Här har varje detalj valts med omsorg och inredningen präglas likt köket av moderna materialval, smarta lösningar och stilren design i JM Originals utförande. Här finns det även möjlighet att välja och kombinera materialval efter din egen smak.
Badrummet är helkaklat med ett stående vitt matt kakel. Tillsammans med ett grått klinkergolv skapas en säker och tidlös stil. En kommod under tvättstället gör det lätt att hålla ordning i badrummet och ovan tvättmaskin och torktumlare en praktisk arbetsbänk och förvaring i väggskåp. Andra fina detaljer är duschväggar av glas och den av JM designade torkställningen John.
Tillsammans med ytterligare ett kvarter omsluter bostäderna en lummig innergård med planteringar, pergola och lekyta. Under gården byggs ett garage i två plan samt förråd. I entréplan finns lokaler för tex. kontor eller butik samt miljörum, cykelrum och cykelmekarplats.
Med ett läge i hjärtat av centrala Nacka har du gångavstånd till Nacka Forum med butiker, restauranger och närservice, samt till naturen med Nyckelviken och vattnet vid Nacka Strand. Kommunikationerna är utmärkta med flera busslinjer, den populära pendelbåten till Nybroviken och den blivande tunnelbanan inom kort gångavstånd.
Lägenheten har en ljus och sober färgsättning med mattlackad ekparkett. Köket har i originalutförandet släta vita luckor och en grå bänkskiva som fortsätter upp på väggen som en bakkantslist. För en stilren känsla är köksskåpen ovan bänk handtagslösa och lådor med rostfria handtag samt en LED-list under väggskåpen som ger ett energieffektivt arbetsljus. De rostfria vitvarorna och den integrerade diskmaskinen skapar ett enhetligt intryck tillsammans medan de vitmålade väggarna.
Badrummet är rymligt och utrustat med tvättmaskin och torktumlare samt en arbetsbänk och förvaringsskåp. Här har varje detalj valts med omsorg och inredningen präglas likt köket av moderna materialval, smarta lösningar och stilren design i JM Originals utförande. Här finns det även möjlighet att välja och kombinera materialval efter din egen smak.
Badrummet är helkaklat med ett stående vitt matt kakel. Tillsammans med ett grått klinkergolv skapas en säker och tidlös stil. En kommod under tvättstället gör det lätt att hålla ordning i badrummet och ovan tvättmaskin och torktumlare en praktisk arbetsbänk och förvaring i väggskåp. Andra fina detaljer är duschväggar av glas och den av JM designade torkställningen John.
Tillsammans med ytterligare ett kvarter omsluter bostäderna en lummig innergård med planteringar, pergola och lekyta. Under gården byggs ett garage i två plan samt förråd. I entréplan finns lokaler för tex. kontor eller butik samt miljörum, cykelrum och cykelmekarplats.
Med ett läge i hjärtat av centrala Nacka har du gångavstånd till Nacka Forum med butiker, restauranger och närservice, samt till naturen med Nyckelviken och vattnet vid Nacka Strand. Kommunikationerna är utmärkta med flera busslinjer, den populära pendelbåten till Nybroviken och den blivande tunnelbanan inom kort gångavstånd.












