2 rok, 43 m²
Här presenteras en yteffektiv ägarlägenhet i ett fint hörnläge högt upp i huset med balkong som vetter mot gården, en bostad som bjuder många kvaliteter som låga fasta kostnader, genomtänkt planlösning och rymlig balkong.
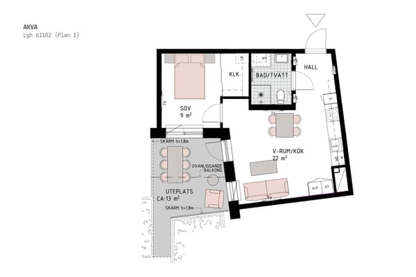
Bostaden är omsorgsfullt planerad från första steget in i hallen, här möts du av goda förvaringsmöjligheter och ingång till bostadens badrum. Vidare följer ett stilrent kök och vardagsrum i öppen planlösning där varje yta har en tydlig funktion, trots den kompakta ytan ryms både matplats och soffhörna utan att det känns trångt.
Det rogivande sovrummet rymmer både dubbelsäng och gott om förvaring bakom skjutdörrsgarderob, utöver ett fullt utrustat kök är även badrummet fullt utrustat med kombinerad tvättmaskin och torktumlare samt dusch med smakfulla glasväggar vilket skapar en bostad som lämnar lite att önska.
Färgsättningen är genomgående ljus och smakfull där samtliga väggar är målade i en klassisk vit kulör och kompletteras fint av en mattlackad ekparkett. Köksinredningen går i vitt med en grå bänkskiva som snyggt förlängs upp på väggen med en bakkantslist. De handtagslösa överskåpen bidrar till en stilren och modern känsla, medan lådor pryds av praktiska rostfria handtag. En LED-list under väggskåpen ger energieffektivt och funktionellt arbetsljus. Köket är utrustat med rostfria vitvaror och en integrerad diskmaskin för ett enhetligt utseende.
Badrummet är helkaklat med ett stående vitt matt kakel. Tillsammans med ett grått klinkergolv skapas en säker och tidlös stil. En kommod under tvättstället gör det lätt att hålla ordning i badrummet. Ovanför kombinerad tvättmaskin och torktumlare sitter förvaring i väggskåp.
Den här bostaden har genomtänkt inredning, fina materialval, smarta lösningar och tidlös design i utförandet JM Original. Givetvis går det att välja och kombinera materialval utifrån din stil och alternativ i olika prisklasser.
Tillsammans med ytterligare ett kvarter omsluter bostäderna en lummig innergård med planteringar, pergola och lekyta. Under gården byggs ett garage i två plan samt förråd. I entréplan finns lokaler för tex. kontor eller butik samt miljörum, cykelrum och cykelmekarplats.
I Akva bor du i hjärtat av centrala Nacka. Gångavstånd till Nacka Forum med butiker, restauranger och närservice samt naturen med Nyckelviken och vattnet vid Nacka Strand. Kommunikationerna är goda med flera busslinjer, den populära pendelbåten till Nybroviken och blivande tunnelbana inom nära promenadavstånd.
Bostaden är omsorgsfullt planerad från första steget in i hallen, här möts du av goda förvaringsmöjligheter och ingång till bostadens badrum. Vidare följer ett stilrent kök och vardagsrum i öppen planlösning där varje yta har en tydlig funktion, trots den kompakta ytan ryms både matplats och soffhörna utan att det känns trångt.
Det rogivande sovrummet rymmer både dubbelsäng och gott om förvaring bakom skjutdörrsgarderob, utöver ett fullt utrustat kök är även badrummet fullt utrustat med kombinerad tvättmaskin och torktumlare samt dusch med smakfulla glasväggar vilket skapar en bostad som lämnar lite att önska.
Färgsättningen är genomgående ljus och smakfull där samtliga väggar är målade i en klassisk vit kulör och kompletteras fint av en mattlackad ekparkett. Köksinredningen går i vitt med en grå bänkskiva som snyggt förlängs upp på väggen med en bakkantslist. De handtagslösa överskåpen bidrar till en stilren och modern känsla, medan lådor pryds av praktiska rostfria handtag. En LED-list under väggskåpen ger energieffektivt och funktionellt arbetsljus. Köket är utrustat med rostfria vitvaror och en integrerad diskmaskin för ett enhetligt utseende.
Badrummet är helkaklat med ett stående vitt matt kakel. Tillsammans med ett grått klinkergolv skapas en säker och tidlös stil. En kommod under tvättstället gör det lätt att hålla ordning i badrummet. Ovanför kombinerad tvättmaskin och torktumlare sitter förvaring i väggskåp.
Den här bostaden har genomtänkt inredning, fina materialval, smarta lösningar och tidlös design i utförandet JM Original. Givetvis går det att välja och kombinera materialval utifrån din stil och alternativ i olika prisklasser.
Tillsammans med ytterligare ett kvarter omsluter bostäderna en lummig innergård med planteringar, pergola och lekyta. Under gården byggs ett garage i två plan samt förråd. I entréplan finns lokaler för tex. kontor eller butik samt miljörum, cykelrum och cykelmekarplats.
I Akva bor du i hjärtat av centrala Nacka. Gångavstånd till Nacka Forum med butiker, restauranger och närservice samt naturen med Nyckelviken och vattnet vid Nacka Strand. Kommunikationerna är goda med flera busslinjer, den populära pendelbåten till Nybroviken och blivande tunnelbana inom nära promenadavstånd.













