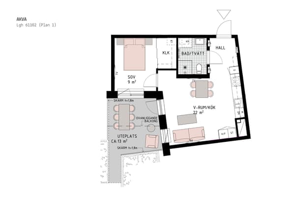
2 rok, 45 m²
Välkommen till denna välplanerade och yteffektiva tvårummaren högst upp i huset där optimal planlösning och generös balkong i söderläge möter personlig frihet och låga fasta kostnader. En välkomnande och praktisk hall med ingång till bostadens badrum med bekvämligheter såsom duschhörna av glas och kombimaskin med förvaringsskåp ovanför. Vidare följer en flexibel planlösning mellan kök, vardagsrum och arbetsrum samt rymligt sovrum med garderobsvägg.
Den här bostaden har genomtänkt inredning, fina materialval, smarta lösningar och tidlös design i utförandet JM Original. Givetvis går det att välja och kombinera materialval utifrån din stil – från det kostnadsfria sortimentet eller från ytterligare alternativ i olika prisklasser.
Färgsättningen är genomgående ljus och smakfull där samtliga väggar är målade i en klassisk vit kulör och kompletteras fint av en mattlackad ekparkett. Köksinredningen går i vitt med en grå bänkskiva som snyggt förlängs upp på väggen med en bakkantslist. De handtagslösa överskåpen bidrar till en stilren och modern känsla, medan lådor pryds av praktiska rostfria handtag. En LED-list under väggskåpen ger energieffektivt och funktionellt arbetsljus. Köket är utrustat med rostfria vitvaror och en integrerad diskmaskin för ett enhetligt utseende.
Badrummet är helkaklat med ett stående vitt matt kakel. Tillsammans med ett grått klinkergolv skapas en säker och tidlös stil. En kommod under tvättstället gör det lätt att hålla ordning i badrummet. Ovanför kombinerad tvättmaskin och torktumlare sitter förvaring i väggskåp. Andra fina detaljer är duschväggar av glas och, den av JM designade torkställningen John.
Tillsammans med ytterligare ett kvarter omsluter bostäderna en lummig innergård med planteringar, pergola och lekyta. Under gården byggs ett garage i två plan samt förråd. I entréplan finns lokaler för tex. kontor eller butik samt miljörum, cykelrum och cykelmekarplats.
I Akva bor du i hjärtat av centrala Nacka. Gångavstånd till Nacka Forum med butiker, restauranger och närservice samt naturen med Nyckelviken och vattnet vid Nacka Strand. Kommunikationerna är goda med flera busslinjer, den populära pendelbåten till Nybroviken och blivande tunnelbana inom nära promenadavstånd.
Den här bostaden har genomtänkt inredning, fina materialval, smarta lösningar och tidlös design i utförandet JM Original. Givetvis går det att välja och kombinera materialval utifrån din stil – från det kostnadsfria sortimentet eller från ytterligare alternativ i olika prisklasser.
Färgsättningen är genomgående ljus och smakfull där samtliga väggar är målade i en klassisk vit kulör och kompletteras fint av en mattlackad ekparkett. Köksinredningen går i vitt med en grå bänkskiva som snyggt förlängs upp på väggen med en bakkantslist. De handtagslösa överskåpen bidrar till en stilren och modern känsla, medan lådor pryds av praktiska rostfria handtag. En LED-list under väggskåpen ger energieffektivt och funktionellt arbetsljus. Köket är utrustat med rostfria vitvaror och en integrerad diskmaskin för ett enhetligt utseende.
Badrummet är helkaklat med ett stående vitt matt kakel. Tillsammans med ett grått klinkergolv skapas en säker och tidlös stil. En kommod under tvättstället gör det lätt att hålla ordning i badrummet. Ovanför kombinerad tvättmaskin och torktumlare sitter förvaring i väggskåp. Andra fina detaljer är duschväggar av glas och, den av JM designade torkställningen John.
Tillsammans med ytterligare ett kvarter omsluter bostäderna en lummig innergård med planteringar, pergola och lekyta. Under gården byggs ett garage i två plan samt förråd. I entréplan finns lokaler för tex. kontor eller butik samt miljörum, cykelrum och cykelmekarplats.
I Akva bor du i hjärtat av centrala Nacka. Gångavstånd till Nacka Forum med butiker, restauranger och närservice samt naturen med Nyckelviken och vattnet vid Nacka Strand. Kommunikationerna är goda med flera busslinjer, den populära pendelbåten till Nybroviken och blivande tunnelbana inom nära promenadavstånd.















